Tải Miễn Phí File CAD Nhà Phố 3 Tầng 5x17m Hiện Đại – Full Bản Vẽ 2025
Bạn đang tìm kiếm một giải pháp thiết kế cho mảnh đất 5x17m của mình? Một không gian sống hiện đại, tối ưu công năng và tràn ngập ánh sáng tự nhiên? Hôm nay, Công ty Cổ phần Không Gian Đẹp xin gửi tặng cộng đồng một món quà đặc biệt: bộ file CAD đầy đủ của mẫu nhà phố 3 tầng 5x17m phong cách hiện đại. Đây không chỉ là một mẫu thiết kế đẹp mà còn là giải pháp không gian sống hoàn hảo, được nhiều gia đình lựa chọn khi tìm đến dịch vụ thiết kế nhà tại Đà Nẵng của chúng tôi.
Hãy cùng chúng tôi phân tích chi tiết sức hấp dẫn của công trình này trước khi bạn nhấn nút tải về!
1. Vẻ Đẹp Kiến Trúc Mặt Tiền Hiện Đại & Tinh Tế
Ngay từ cái nhìn đầu tiên, mẫu nhà phố đã gây ấn tượng mạnh mẽ bởi vẻ đẹp kiến trúc hiện đại, khỏe khoắn và đầy tinh tế. Các kiến trúc sư đã khéo léo kết hợp các hình khối, vật liệu và màu sắc để tạo nên một tổng thể hài hòa và cuốn hút.
- Hình khối & Đường nét: Thiết kế sử dụng các đường nét thẳng, dứt khoát kết hợp với các khối hộp vuông vức, tạo nên sự vững chãi và năng động. Việc giật cấp giữa các tầng không chỉ tạo điểm nhấn thị giác mà còn giúp tối ưu không gian ban công, sân thượng.
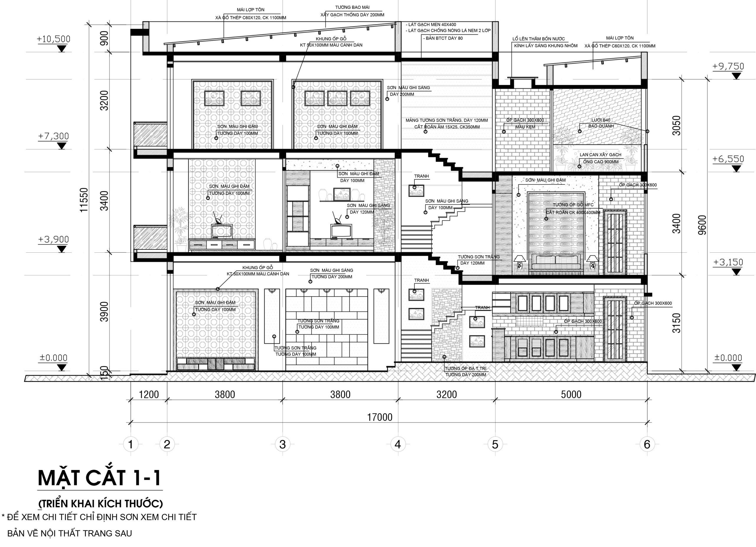
- Vật liệu & Màu sắc: Sự kết hợp giữa các vật liệu hiện đại là điểm nhấn đắt giá. Tường sơn trắng chủ đạo làm nổi bật các mảng ốp gỗ conwood màu nâu ấm áp và gạch ốp màu xám ghi sang trọng. Hệ thống cửa kính, lan can kính cường lực với khung nhôm Xingfa đen tuyền vừa đảm bảo an toàn, vừa tạo không gian mở, đón sáng tối đa.
- Ánh sáng: Thiết kế tận dụng tối đa ánh sáng tự nhiên vào ban ngày và sử dụng hệ thống đèn LED âm trần, đèn hắt tường để tôn vinh vẻ đẹp kiến trúc vào ban đêm, biến ngôi nhà thành một điểm sáng trong khu phố.
2. Phân Tích Chi Tiết Mặt Bằng Công Năng 3 Tầng
Một ngôi nhà đẹp phải đi đôi với công năng tiện nghi. Mẫu Thiết kế NHÀ PHỐ 3 tầng này được bố trí không gian một cách khoa học, đáp ứng đầy đủ nhu cầu sinh hoạt cho một gia đình 4-6 thành viên.
Mặt Bằng Tầng 1: Không Gian Sinh Hoạt Chung & Kết Nối
- Sân trước: Đủ rộng để làm khu vực để xe máy và trồng cây xanh.
- Phòng khách: Được bố trí ngay sau cửa chính, là không gian tiếp khách sang trọng và ấm cúng.
- Cầu thang & WC: Cầu thang được đặt ở vị trí trung tâm, giúp giao thông thuận tiện. Một WC nhỏ được đặt khéo léo dưới gầm cầu thang để tiết kiệm diện tích.
- Phòng bếp & Ăn: Liên thông với phòng khách tạo thành một không gian mở, giúp ngôi nhà trở nên rộng rãi và thoáng đãng hơn. Bếp có lối ra sân sau nhỏ, giúp thoát mùi và lưu thông không khí.
Mặt Bằng Tầng 2: Không Gian Riêng Tư & Nghỉ Ngơi
- 2 Phòng ngủ: Tầng 2 được dành trọn cho không gian nghỉ ngơi với 2 phòng ngủ lớn. Mỗi phòng đều có WC khép kín, đảm bảo sự riêng tư và tiện nghi tối đa.
- Tối ưu ánh sáng: Phòng ngủ phía trước có ban công rộng, trong khi phòng ngủ phía sau có cửa sổ lớn hướng ra giếng trời, đảm bảo cả hai phòng đều thông thoáng và đủ sáng.
Mặt Bằng Tầng 3: Không Gian Đa Năng & Thư Giãn
- Phòng thờ: Bố trí ở vị trí trang trọng nhất, hướng ra sân thượng phía trước, đảm bảo sự tôn nghiêm và yên tĩnh.
- Phòng ngủ nhỏ / Phòng làm việc: Một phòng ngủ dự phòng có thể linh hoạt sử dụng làm phòng làm việc, phòng đọc sách tùy theo nhu cầu của gia chủ.
- Sân phơi & Sân thượng: Sân phơi phía sau kín đáo, trong khi sân thượng phía trước là không gian lý tưởng để trồng cây, đặt bàn trà thư giãn sau một ngày làm việc mệt mỏi.
3. Thông Tin Bộ Hồ Sơ Bản Vẽ CAD (Miễn Phí)
Chúng tôi hiểu rằng việc xem hình ảnh thôi là chưa đủ. Để có thể ứng dụng vào thực tế hoặc chỉnh sửa cho phù hợp với nhu cầu riêng, bạn cần có bộ bản vẽ kỹ thuật chi tiết.
Bộ hồ sơ chúng tôi chia sẻ hoàn toàn MIỄN PHÍ, bao gồm:
- Bản vẽ kiến trúc: Mặt bằng các tầng, mặt đứng chính, mặt cắt dọc nhà.
- Định dạng: File AutoCAD (
.dwg
) tương thích với hầu hết các phiên bản, dễ dàng xem và chỉnh sửa.
- Chất lượng: Bản vẽ đầy đủ kích thước, chi tiết, có thể dùng làm cơ sở để phát triển hồ sơ thi công.
NHẤN VÀO ĐÂY ĐỂ TẢI NGAY BỘ HỒ SƠ CAD MIỄN PHÍ
[Link Download File CAD Nhà Phố 3 Tầng 5x17m.DWG]
(Lưu ý: Link sẽ được cập nhật sớm nhất. Vui lòng để lại bình luận nếu bạn không tải được)
Lời Kết & Dịch Vụ Của Chúng Tôi
Mẫu nhà phố 3 tầng 5x17m này là một minh chứng cho thấy với sự tính toán hợp lý, ngay cả trên một diện tích không quá lớn, chúng ta vẫn có thể tạo ra một không gian sống đẳng cấp, tiện nghi và tràn đầy cảm hứng. Hy vọng bộ file CAD miễn phí này sẽ là tài liệu tham khảo hữu ích cho quý vị.
Nếu bạn yêu thích mẫu thiết kế này và cần một đơn vị chuyên nghiệp để hiện thực hóa nó, đừng ngần ngại liên hệ với Không Gian Đẹp. Chúng tôi là đơn vị hàng đầu trong lĩnh vực thiết kế nhà phố tại Đà Nẵng và thi công nhà tại đà nẵng.
Ngoài ra, nếu bạn có nhu cầu sửa chữa cải tạo nhà tại đà nẵng để nâng cấp không gian sống hiện tại, đội ngũ của chúng tôi cũng luôn sẵn sàng tư vấn. Vui lòng tham khảo báo giá thi công nhà tại đà nẵng mới nhất của chúng tôi để có dự toán chi phí tốt nhất cho công trình của mình.
HÌNH ẢNH DỰ ÁN










Lưu ý: File được chia sẻ với mục đích tham khảo. Vui lòng không sử dụng cho mục đích thương mại khi chưa có sự cho phép.