
Thiết Kế Biệt Thự Mini 2 Tầng 8×12: Vẻ Đẹp Tinh Tế & Không Gian Sống Đẳng Cấp
Không cần một diện tích quá lớn, mẫu thiết kế biệt thự mini 2 tầng 8x12m đã chứng minh rằng sự tinh tế và đẳng cấp có thể được kiến tạo trong một không gian vừa vặn. Với phong cách hiện đại kết hợp cùng hệ mái Nhật sang trọng, đây là lựa chọn hoàn hảo cho những gia đình yêu thích sự yên tĩnh và gần gũi với thiên nhiên.
Hãy cùng khám phá chi tiết mẫu thiết kế biệt thự 2 tầng này để tìm thấy nguồn cảm hứng cho tổ ấm tương lai của bạn.
1. Kiến Trúc Mái Nhật: Nét Chấm Phá Sang Trọng
Điểm nhấn đắt giá nhất của công trình chính là hệ mái Nhật với độ dốc vừa phải, tạo nên vẻ đẹp thanh thoát và bề thế. Kiến trúc mặt tiền sử dụng các mảng khối vuông vức, kết hợp vật liệu ốp tường, ban công kính và không gian sân vườn xanh mát, mang lại một tổng thể hài hòa, cân đối và đầy sức sống.






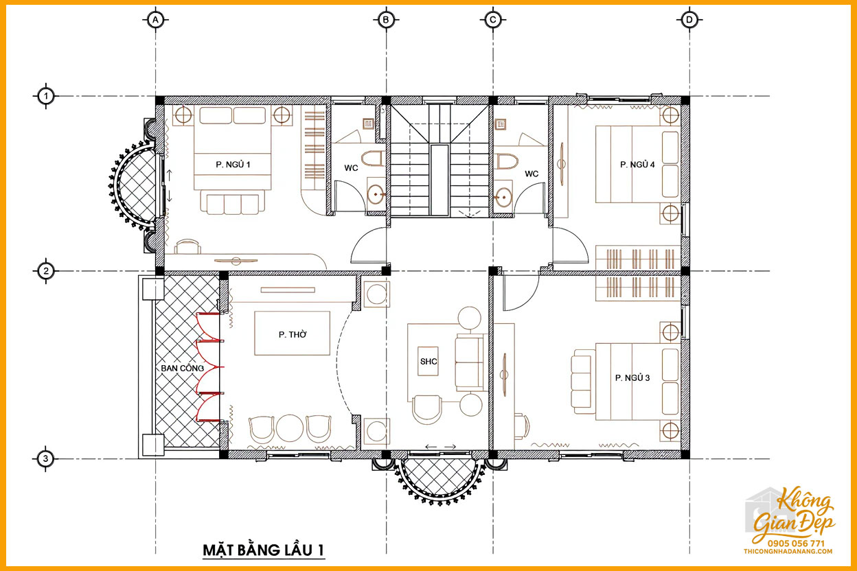
2. Mặt Bằng Công Năng: Bố Trí Khoa Học Cho Gia Đình 3-4 Thành Viên
Với tổng diện tích sàn gần 200m², công năng của biệt thự được phân chia một cách khoa học, vừa đảm bảo không gian sinh hoạt chung rộng rãi, vừa tối ưu sự riêng tư cho từng thành viên.
Mặt Bằng Tầng 1: Không Gian Sinh Hoạt & Gắn Kết

- Phòng khách: Rộng rãi, là không gian sinh hoạt chính của gia đình.
- Phòng bếp + Bàn ăn: Thiết kế mở, tạo sự kết nối ấm cúng.
- 01 Phòng ngủ: Thuận tiện cho người lớn tuổi hoặc làm phòng cho khách.
- WC chung: Bố trí hợp lý, tiện nghi.
Mặt Bằng Tầng 2: Không Gian Riêng Tư & Tâm Linh

- 02 Phòng ngủ: Bao gồm 1 phòng master và 1 phòng ngủ phụ, đều có WC riêng.
- Phòng thờ: Đặt ở vị trí trang nghiêm, yên tĩnh.
- Sân phơi: Bố trí kín đáo, thuận tiện.
3. Phân Tích Chi Phí Đầu Tư Chi Tiết
Để giúp bạn có cái nhìn rõ ràng nhất về ngân sách cần chuẩn bị, chúng tôi xin đưa ra bảng phân tích chi phí chi tiết dựa trên cách tính diện tích và báo giá thi công nhà tại Đà Nẵng tham khảo năm 2025.
Hạng Mục Tính Diện Tích | Diện Tích (m²) | |
---|---|---|
Móng băng (50% diện tích) | 48 | |
Tầng 1 (100% diện tích) | 96 | |
Tầng 2 (100% diện tích) | 96 | |
Mái Nhật (70% diện tích) | 67.2 | |
Tổng Diện Tích Xây Dựng | 307.2 m² |
Gói Thi Công | Đơn Giá (VNĐ/m²) | Thành Tiền (VNĐ) |
---|---|---|
Khoán Nhân công hoàn thiện | 1.600.000 | ~ 491.520.000 |
Khoán Phần thô & Nhân công hoàn thiện | 3.800.000 | ~ 1.167.360.000 |
Hoàn thiện trọn gói (Chìa khóa trao tay – Gói Khá) | 6.000.000 | ~ 1.843.200.000 |
Nội thất (Dự kiến gói khá) | – | ~ 400.000.000 |
TỔNG GIÁ TRỊ CÔNG TRÌNH (Hoàn thiện + Nội thất) | ~ 2.243.200.000 |
Lưu ý: Bảng giá trên chỉ mang tính chất tham khảo. Đơn giá thi công nhà phố và biệt thự chính xác sẽ phụ thuộc vào vật liệu, điều kiện thi công và các yêu cầu riêng.
Kiến Tạo Tổ Ấm Đẳng Cấp Cùng Chúng Tôi
Bạn đã sẵn sàng biến ngôi nhà mơ ước thành hiện thực? Hãy liên hệ ngay với chúng tôi để được tư vấn thiết kế, tư vấn phong thuỷ và nhận báo giá chi tiết nhất.
Nhận Báo Giá & Tư Vấn Miễn Phí
Hotline/Zalo: [Số điện thoại của bạn]
Địa chỉ: [Địa chỉ công ty của bạn]
Đánh giá
Chưa có đánh giá nào.