TOP 5 Mẫu Nhà Phố Đẹp Xu Hướng Tháng 7/2025 Tại Đà Nẵng






TOP 5 Mẫu Nhà Phố Đẹp Xu Hướng Tháng 7/2025 Tại Đà Nẵng




TOP 5 Mẫu Nhà Phố Đẹp Xu Hướng Tháng 7/2025 Tại Đà Nẵng

Tìm kiếm một tổ ấm không chỉ là tìm một nơi để ở, mà là hành trình kiến tạo một không gian sống phản chiếu cá tính và mang lại vượng khí. Tháng 7 này, hãy cùng khám phá 5 mẫu thiết kế nhà phố đang dẫn đầu xu hướng tại Đà Nẵng, mỗi mẫu là một phong cách, một câu chuyện và một giải pháp tài chính riêng.





Mẫu 1: Nhà Phố 5×15 Hiện Đại – 4 Phòng Ngủ Tiện Nghi

1. Giới thiệu: Vẻ đẹp của sự tối ưu

Đây là giải pháp kiến trúc thông minh dành cho gia đình đa thế hệ trên mảnh đất 5x15m. Mọi không gian đều được tối ưu hóa để mang lại sự thoải mái và riêng tư. Kiến trúc mặt tiền hiện đại, khỏe khoắn, không bao giờ lỗi mốt, là tuyên ngôn về một phong cách sống năng động.

Phối cảnh mặt tiền nhà phố 3 tầng 5x15m 4 phòng ngủ
Phối cảnh góc nghiêng nhà phố 3 tầng 5x15m

2. Phân tích công năng

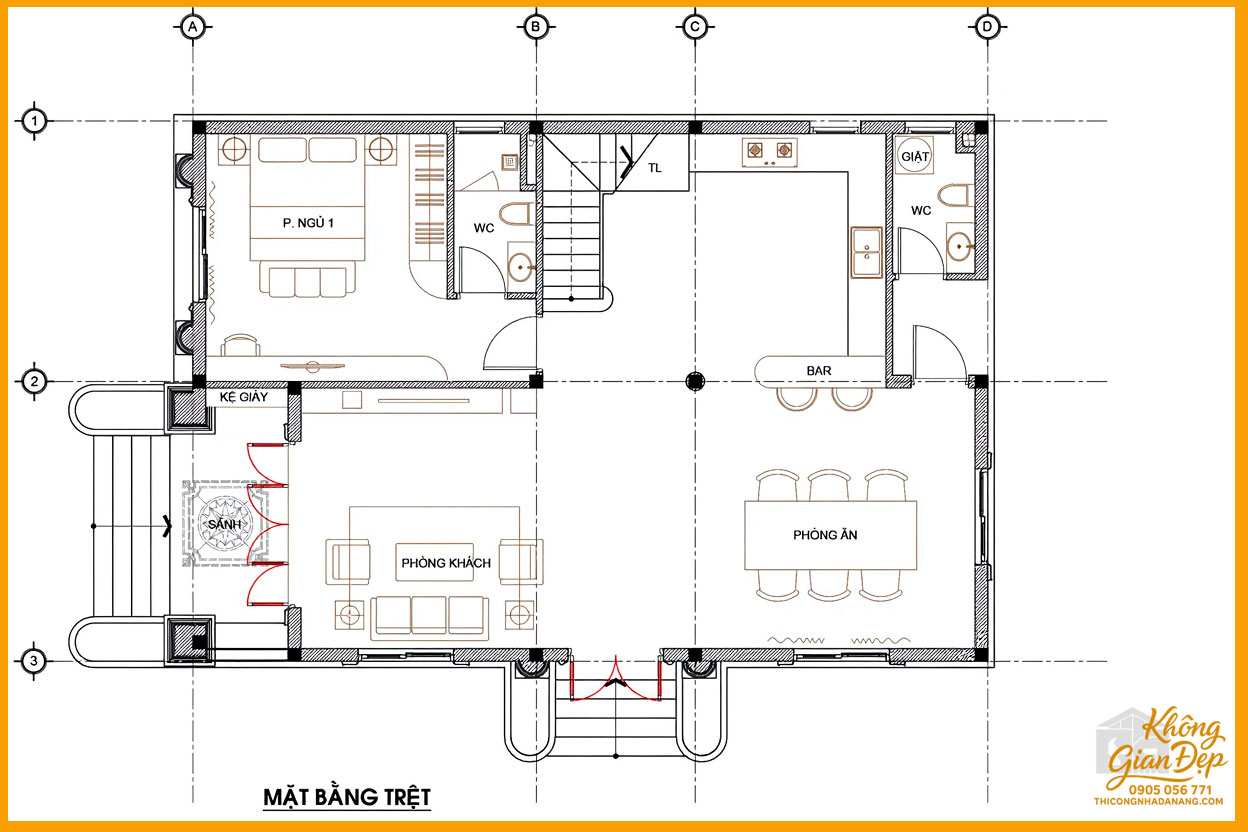
Bản vẽ mặt bằng kiến trúc nhà 3 tầng 5x15m 4 phòng ngủ

Với 3 tầng, công năng được phân chia khoa học: Tầng 1 cho không gian sinh hoạt chung, tầng 2 và 3 là khu vực nghỉ ngơi riêng tư, đảm bảo mỗi thành viên đều có không gian cá nhân cần thiết.

3. Phân tích phong thủy

Lý tưởng cho gia chủ mệnh **Mộc** (sinh năm 1988, 1989), xây nhà hướng **Đông (Diên Niên)**, giúp gia đình hòa thuận, ổn định. Nội thất gỗ và tông màu xanh lá cây trong phòng ngủ sẽ là điểm nhấn tương hợp, mang lại vượng khí.

Nội thất phòng khách nhà phố 3 tầng 5x15m
Nội thất phòng bếp nhà phố 3 tầng 5x15m
Nội thất phòng ngủ master nhà phố 3 tầng 5x15m

4. Phân tích giá trị (Tổng DTXD: 285m²)

Phần thô & nhân công hoàn thiện: **~998 triệu**. Xây dựng trọn gói (gói khá): **~1.57 tỷ**.

5. Kết luận & Dành cho ai?

Đây là lựa chọn hoàn hảo cho gia đình có từ 4-6 thành viên, cần nhiều không gian riêng tư nhưng diện tích đất hạn chế. Nếu bạn yêu thích phong cách hiện đại, tiện nghi với ngân sách đầu tư trọn gói khoảng **1.6 – 1.8 tỷ**, đừng bỏ qua mẫu nhà này.

Xem chi tiết & Thêm hình ảnh của mẫu nhà này →

Mẫu 2: Nhà Phố 5×20 Có Giếng Trời “Cực Chill”

1. Giới thiệu: Mang thiên nhiên vào nhà

Giải pháp kiến trúc thông minh giúp nhà ống luôn thoáng đãng, ngập tràn ánh sáng. Giếng trời không chỉ là điểm nhấn thẩm mỹ mà còn là “lá phổi xanh”, biến không gian sống thành nơi thư giãn và tái tạo năng lượng mỗi ngày, đúng chất “sống chill” giữa lòng thành phố.

Phối cảnh mặt tiền nhà ống 3 tầng 5x20 có giếng trời
Giếng trời và khu vực thư giãn trong nhà ống 3 tầng 5x20

2. Phân tích công năng

Bản vẽ mặt bằng nhà 3 tầng 5x20 có giếng trời

Điểm đặc biệt là giếng trời được đặt ở trung tâm, giúp kết nối và điều hòa không khí cho tất cả các không gian từ phòng khách, bếp cho đến các phòng ngủ ở tầng trên.

3. Phân tích phong thủy

Hoàn hảo cho gia chủ mệnh **Thủy** (sinh năm 1982, 1983), xây nhà hướng **Bắc (Phục Vị)**, mang lại sự bình yên, may mắn. Giếng trời (hành Mộc) và tiểu cảnh nước (hành Thủy) sẽ là yếu tố tương sinh, cực kỳ tốt cho gia chủ.

Nội thất phòng khách nhà ống 3 tầng 5x20 có giếng trời
Nội thất phòng bếp nhà ống 3 tầng 5x20 có giếng trời
Nội thất phòng ngủ master nhà ống 3 tầng 5x20

4. Phân tích giá trị (Tổng DTXD: 380m²)

Phần thô & nhân công hoàn thiện: **~1.33 tỷ**. Xây dựng trọn gói (gói khá): **~2.09 tỷ**.

5. Kết luận & Dành cho ai?

Lựa chọn lý tưởng cho các gia đình trẻ, yêu thiên nhiên, cần không gian sống thoáng đãng và sáng tạo. Nếu bạn muốn mỗi ngày trở về nhà là một lần “sạc pin”, đây chính là thiết kế dành cho bạn với ngân sách trọn gói khoảng **2.1 – 2.3 tỷ**.

Xem chi tiết & Thêm hình ảnh của mẫu nhà này →

Mẫu 3: Nhà Phố 6×13 Mặt Tiền Rộng Tinh Tế

1. Giới thiệu: Tối ưu lợi thế mặt tiền

Tận dụng lợi thế mặt tiền 6m để tạo ra một không gian sống sang trọng, khoáng đạt và đầy đủ tiện nghi. Thiết kế này là minh chứng cho việc nhà không cần quá dài vẫn có thể đẹp và tiện nghi, phá vỡ định kiến về nhà ống truyền thống.

Phối cảnh mặt tiền nhà phố 3 tầng 6x13m đẹp mê ly
Phối cảnh ban đêm nhà phố 3 tầng 6x13m

2. Phân tích công năng

Bản vẽ mặt bằng tầng 1 nhà phố 3 tầng 6x13m

Mặt tiền rộng cho phép bố trí gara ô tô và phòng khách song song, tạo sự thuận tiện và bề thế. Các không gian phía sau vẫn đảm bảo sự thông thoáng nhờ giếng trời.

3. Phân tích phong thủy

Rất tốt cho gia chủ mệnh **Kim** (sinh năm 1984, 1985), xây nhà hướng **Tây (Sinh Khí)**, giúp thu hút tài lộc, thăng tiến. Nội thất với các chi tiết kim loại, màu trắng, xám sẽ là điểm nhấn phong thủy đắt giá, mang lại năng lượng tích cực.

Nội thất phòng khách nhà phố 3 tầng 6x13m
Nội thất phòng bếp nhà phố 3 tầng 6x13m
Nội thất phòng ngủ master nhà phố 3 tầng 6x13m

4. Phân tích giá trị (Tổng DTXD: 312m²)

Phần thô & nhân công hoàn thiện: **~1.09 tỷ**. Xây dựng trọn gói (gói khá): **~1.72 tỷ**.

5. Kết luận & Dành cho ai?

Lựa chọn tối ưu cho gia đình sở hữu lô đất mặt tiền rộng nhưng chiều sâu hạn chế. Nếu bạn muốn một ngôi nhà có gara ô tô tiện lợi và không gian sống khoáng đạt, đây là giải pháp với ngân sách trọn gói khoảng **1.7 – 1.9 tỷ**.

Xem chi tiết & Thêm hình ảnh của mẫu nhà này →

Mẫu 4: Biệt Thự Mini 8×12 Mái Nhật Sang Trọng

1. Giới thiệu: Đẳng cấp resort tại gia

Một không gian sống đẳng cấp như resort thu nhỏ, kết hợp giữa kiến trúc hiện đại và nét duyên dáng của mái Nhật. Đây là lựa chọn thể hiện gu thẩm mỹ tinh tế và đẳng cấp của gia chủ, phù hợp với các lô đất biệt thự vừa phải.

Phối cảnh mặt tiền biệt thự 2 tầng 8x12 mái Nhật hiện đại
Phối cảnh tổng thể biệt thự 2 tầng 8x12 có sân vườn

2. Phân tích công năng

Bản vẽ mặt bằng công năng tầng 1 biệt thự 2 tầng 8x12

Công năng 2 tầng với 3 phòng ngủ được bố trí khoa học, có phòng ngủ tại tầng 1 tiện cho người lớn tuổi. Sân vườn bao quanh mang lại không gian xanh mát và sự riêng tư.

3. Phân tích phong thủy

Tuyệt vời cho gia chủ mệnh **Thổ** (sinh năm 1990, 1991), xây nhà hướng **Tây Nam (Diên Niên)**, củng cố các mối quan hệ và sự ổn định gia đình. Sử dụng vật liệu gạch, đá và tông màu nâu, vàng sẽ giúp tăng cường vượng khí.

(*Hình ảnh nội thất đang được cập nhật, vui lòng xem chi tiết trong bài viết.*)

4. Phân tích giá trị (Tổng DTXD: 307m²)

Phần thô & nhân công hoàn thiện: **~1.17 tỷ**. Xây dựng trọn gói (gói khá): **~1.84 tỷ**.

5. Kết luận & Dành cho ai?

Phù hợp với gia đình yêu thích sự yên tĩnh, có gu thẩm mỹ tinh tế và muốn một không gian sống chan hòa với thiên nhiên. Ngân sách đầu tư trọn gói khoảng **2.2 – 2.5 tỷ** (đã bao gồm nội thất).

Xem chi tiết & Thêm hình ảnh của mẫu nhà này →

Mẫu 5: Nhà Phố 5×25 Hiện Đại & Sân Thượng “Triệu View”

1. Giới thiệu: Không gian của sự giao lưu

Tận dụng lợi thế chiều sâu để tạo ra một không gian sống tiện nghi và một sân thượng “chill” hết nấc cho những buổi tiệc cuối tuần. Đây là mẫu nhà dành cho những gia chủ hướng ngoại, thích giao lưu và tận hưởng cuộc sống.

Phối cảnh mặt tiền nhà phố 3 tầng 5x25m hiện đại
Sân thượng chill nhà phố 3 tầng 5x25m

2. Phân tích công năng

Bản vẽ mặt bằng kiến trúc nhà 3 tầng 5x25m

Với chiều dài 25m, ngôi nhà có đầy đủ các không gian chức năng từ gara, sân sau, phòng sinh hoạt chung cho đến một sân thượng rộng rãi lý tưởng cho các hoạt động ngoài trời.

3. Phân tích phong thủy

Hợp với gia chủ mệnh **Hỏa** (sinh năm 1986, 1987), xây nhà hướng **Nam (Phục Vị)**, mang lại sự ổn định và may mắn. Sân thượng nhiều ánh nắng (hành Hỏa) và cây xanh (hành Mộc) sẽ là yếu tố tương sinh tuyệt vời, thúc đẩy năng lượng tích cực.

Nội thất phòng khách nhà phố 3 tầng 5x25m
Nội thất phòng bếp nhà phố 3 tầng 5x25m
Nội thất phòng ngủ master nhà phố 3 tầng 5x25m

4. Phân tích giá trị (Tổng DTXD: 462m²)

Phần thô & nhân công hoàn thiện: **~1.62 tỷ**. Xây dựng trọn gói (gói khá): **~2.54 tỷ**.

5. Kết luận & Dành cho ai?

Lựa chọn hoàn hảo cho gia đình đông thành viên, thích giao lưu, tiệc tùng và cần không gian sống rộng rãi. Nếu bạn muốn một ngôi nhà có sân thượng “để đời”, đây là lựa chọn lý tưởng với ngân sách trọn gói khoảng **3.1 – 3.5 tỷ** (đã bao gồm nội thất).

Xem chi tiết & Thêm hình ảnh của mẫu nhà này →


0/5 (0 Reviews)
Bài viết liên quan

Bạn Cần Hỗ Trợ?

Đừng ngần ngại! Hãy khám phá những thông tin quan trọng hoặc liên hệ trực tiếp với chúng tôi để được tư vấn miễn phí.